Trilocale in vendita

Roseto Degli Abruzzi, Viale makarska
€ 259.000
Prezzo aggiornato
3 locali 3 locali
60 Mq 60 Mq
2 bagni 2 bagni

Trilocale in vendita

Roseto Degli Abruzzi, Viale makarska

Descrizione annuncio

Roseto degli Abruzzi, trilocale con ampio terrazzo con vista mare.

Contattaci per maggiori informazioni!

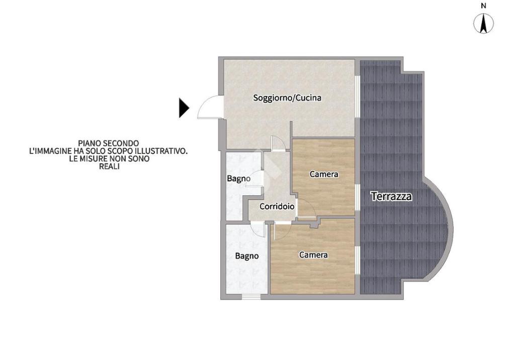
Proponiamo in vendita, a Roseto degli Abruzzi, in Viale Makarska, un elegante trilocale al secondo piano in una palazzina di recente costruzione.

L’immobile si compone di un ingresso su soggiorno con angolo cottura, un disimpegno che porta alla zona notte con due camere e due bagni.

La chicca di questa di soluzione è rappresentata da un ampio terrazzo di circa 20 mq che espone a nord con vista mare.

La zona, a due passi dal mare ma comunque molto riservata, e la presenza di questo favoloso terrazzo rendono questa soluzione unica nel suo genere, ottima sia come investimento, sia come casa estiva che a scopo residenziale.

Prenota un appuntamento, la tua casa al mare ti aspetta.

Se per acquistare la tua nuova casa hai bisogno di vendere il tuo attuale immobile contattaci per una valutazione
gratuita e senza impegno.

Non perdere l'opportunità di acquistare la tua nuova casa, chiamaci per fissare un appuntamento.

Seguici su i nostri canali social:

Facebook: Gruppo Tecnocasa Roseto

Instagram: Tecnocasa_rosetoimmobiliare

Youtube: Tecnocasa Roseto Centro/Nord.

Mostra tutto

Nelle vicinanze

Trasporto pubblico Trasporto pubblico
stazione di Roseto degli Abruzzi
stazione di Roseto degli Abruzzi
1,9 Km
Scuole Scuole
Scuola primaria Statale Maria Schiazza
700 m
Polo Liceale Statale Saffo
1,4 Km
Scuola secondaria di I grado Statale D'Annunzio-Romani
1,5 Km
Scuole
1,5 Km
Scuola Primaria
2,9 Km
Farmacia Farmacia
Farmacia Dell'Aquila
1,7 Km
Farmacia Candelori
2,1 Km
Farmacia Chicco
2,9 Km
Supermercati Supermercati
Supermercati
250 m
Tigre
980 m
Negozi Negozi
Da Giovanni
2,2 Km
Overkids
2,8 Km
Bar Bar
Angelo Azzurro Night Club
1,6 Km
Caffeina
1,8 Km
Bar
1,8 Km
Ristoranti Ristoranti
Da Rocco
230 m
Villa Paris
250 m
Sushita
1,8 Km
Bolla
1,8 Km
Pagus
2,0 Km
Mostra tutto

Caratteristiche

Rif.:
61123098
Piano:
2 di 3 con ascensore (Piano alto)
Terrazzi:
1
Camere da letto:
2
Arredamento:
Parziale
Condizionamento:
Autonomo
Mostra tutto
Prezzo Prezzo
€ 259.000
Rata mutuo Rata mutuo
€ 1.194 / mese
Spese annue Spese annue
€ 600
Proponi il tuo prezzoProponi il tuo prezzo

Classe Energetica

G
G
G
G
G
G
G
G
G
EP globale non rinnovabile:
160.00 kW h/m² anno
EP globale rinnovabile:
1.50 kW h/m² anno
EP invernale del fabbricato:
EP estiva del fabbricato:
Anno di costruzione:
2008
Riscaldamento:
Autonomo
Tipo impianto:
A radiatori
Tipo alimentazione:
Metano

Prezzo ridotto di €1 (4%%)

Ti interessa visionare l'immobile?

Fissa un appuntamento  Fissa un appuntamento

Richiedi informazioni

* Questi campi sono obbligatori

Calcola il tuo mutuo

Semplice e senza impegno
Anticipo

( % )
Mutuo

( % )

pochi semplici passi

inserisci i tuoi dati
Questionario completato
Grazie per aver richiesto un appuntamento senza impegno con un nostro Consulente del Credito e Assicurativo.

Hai inserito correttamente tutti i dati necessari e a breve riceverai una e-mail con un link da convalidare per inviare i tuoi dati.
Affiliato
Roseto Immobiliare Srl
P.zza Della Libertà, 28 64026 Roseto Degli Abruzzi (TE)

Il nostro staff


  • Fabio De Dominicis
    Affiliato

  • Gianfelice Capuani
    Collaboratore

  • Marcellino Menei
    Affiliato

  • Andrea Tomassetti
    Affiliato

  • Gianluca Torbidone
    Affiliato
P.zza Della Libertà, 28 64026 Roseto Degli Abruzzi (TE)
Zona: Roseto degli Abruzzi Centro Nord
Mostra su mappa
Orari: mattina ore- 9,00-13,00 pomeriggio ore -15,00-19,30
Affiliato
Roseto Immobiliare Srl
P.zza Della Libertà, 28 64026 Roseto Degli Abruzzi (TE)

2025 Tecnocasa Franchising S.p.A. - P. IVA 08365160152 - Via Monte Bianco 60/A 20089 Rozzano (MI). Ogni agenzia ha un proprio titolare ed è autonoma. Privacy policy | Policy utilizzo | Cookie policy